

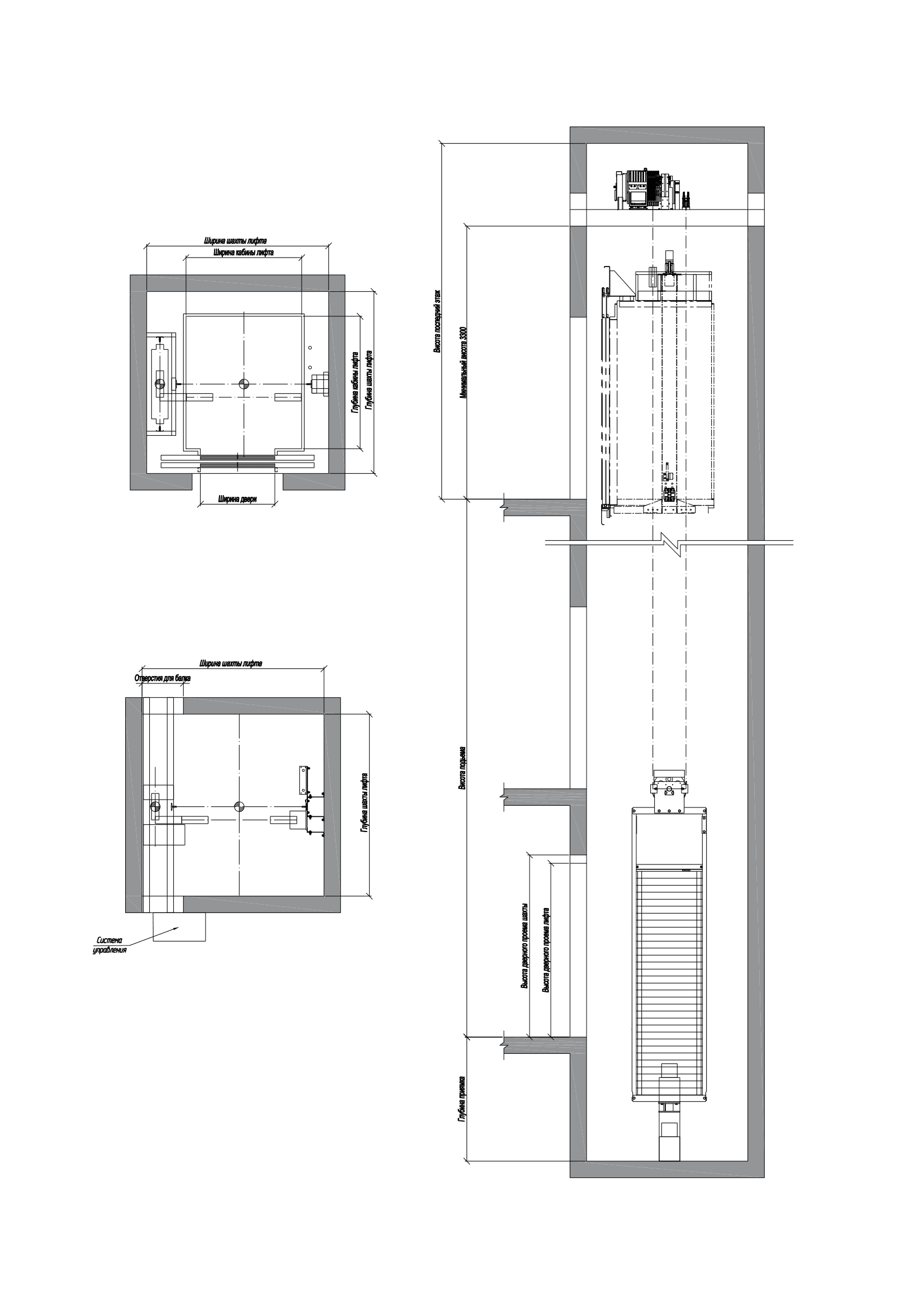
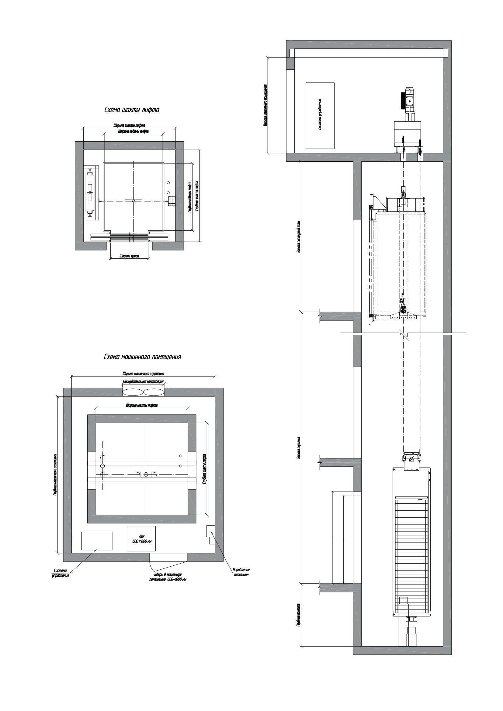
Tlz Sp7
Turi: special
Tepa qismlari charm bilan qoplangan, pastki panellari esa qora MDF taxtadan. Orqa devor marmar naqshli, pol esa marmar ko'rinishida. Shift yoritilgan. Premium turar joylar va mehmonxonalar uchun ideal tanlov.
Kabina turi: special
Panel turi: Zanglamaydigan po'lat, MDF

